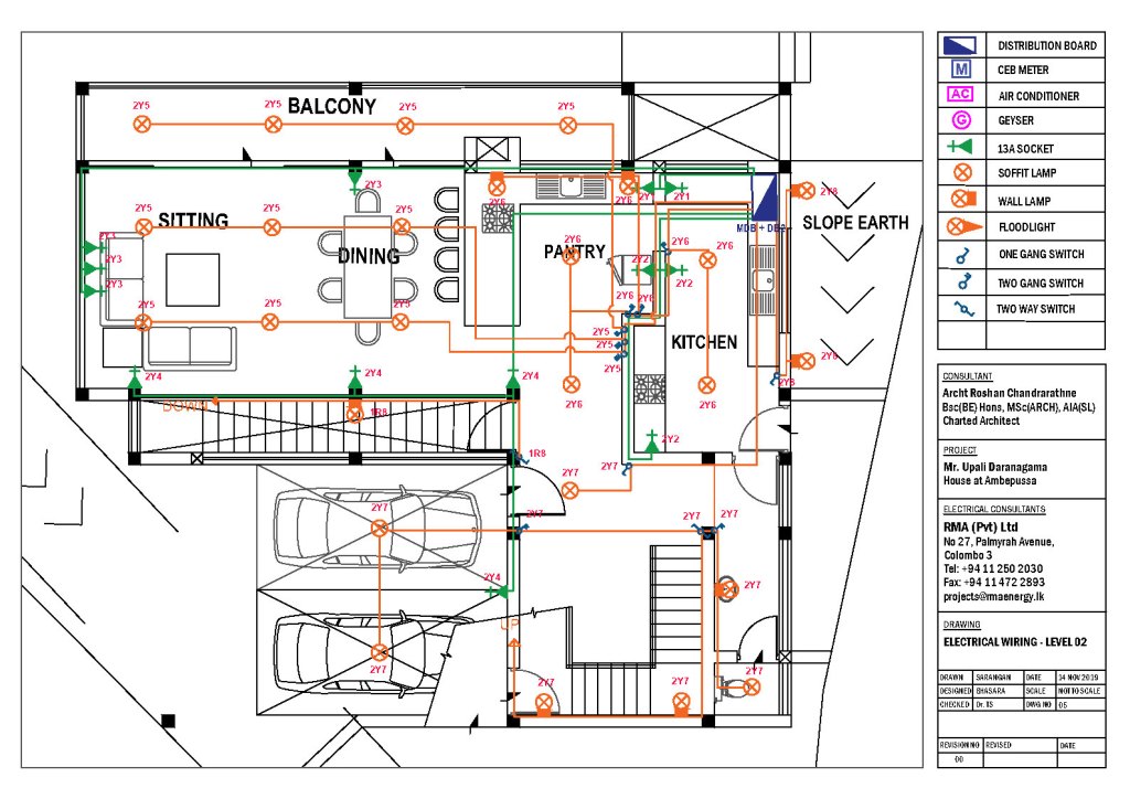
I was called up to design a complete electrical installation design for a 3 story house that was pending construction. I prepared wiring diagrams and single line diagrams for each floor and the earthing diagram promptly considering the lighting, HVAC requirements and the appliances to be used.



